Mehr anzeigen zum Thema Lage
Lage
Die Wohnung befindet sich in bevorzugter und ruhiger Lage in Braunschweig – Lehndorf.
Die Innenstadt ist mit öffentlichen Verkehrsmitteln gut erreichbar.
Einkaufsmöglichkeiten des täglichen Bedarfs befinden sich in unmittelbarer Nähe.
Die Innenstadt ist mit öffentlichen Verkehrsmitteln gut erreichbar.
Einkaufsmöglichkeiten des täglichen Bedarfs befinden sich in unmittelbarer Nähe.
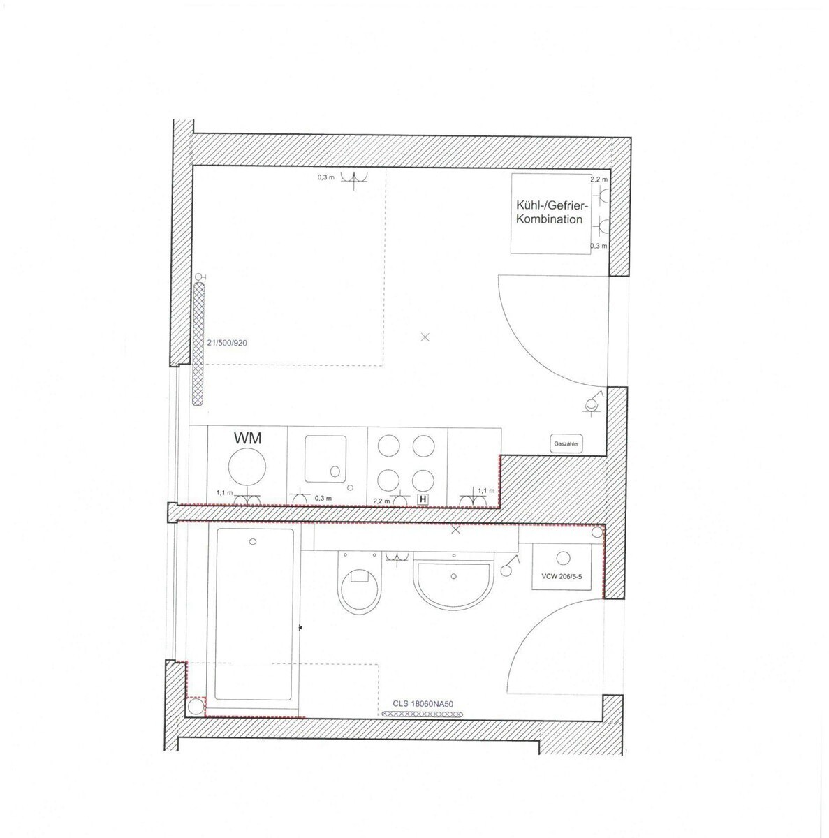
Mehr anzeigen zum Thema Beschreibung
Beschreibung
3 Zimmerwohnung im DG
Küche
Bad
Flur
Keller- u. Bodenraum
Küche
Bad
Flur
Keller- u. Bodenraum
Mehr anzeigen zum Thema Ausstattung
Ausstattung
Laminat in allen Wohnräumen und Flur möglich
Tageslichtbad mit Wanne
Gas-Etagenheizung mit Warmwasserversorgung
Kunststoff- Fenster mit Isolierverglasung
Fassadensanierung einschl. Wärmedämmung
Treppenhausrenovierung
Haustür-Gegensprechanlage
Rauchwarnmelder
Kabelanschluss
Die Wohnung wurde 2020 modernisiert und renoviert, u. a.
1. Bad: Erneuerung der Sänitärobjekte
Vollverfliesung (Wände und Boden)
2. Küche: Vollverfliesung (Wandspiegel und Boden)
3. Erneuerung und Erweiterung der Elektro-Installation
4. Einbau abgehängter Decken einschl. Wärmedämmung
5. Komplettrenovierung (Tapezier-, Maler- und Lackierarbeiten)
Tageslichtbad mit Wanne
Gas-Etagenheizung mit Warmwasserversorgung
Kunststoff- Fenster mit Isolierverglasung
Fassadensanierung einschl. Wärmedämmung
Treppenhausrenovierung
Haustür-Gegensprechanlage
Rauchwarnmelder
Kabelanschluss
Die Wohnung wurde 2020 modernisiert und renoviert, u. a.
1. Bad: Erneuerung der Sänitärobjekte
Vollverfliesung (Wände und Boden)
2. Küche: Vollverfliesung (Wandspiegel und Boden)
3. Erneuerung und Erweiterung der Elektro-Installation
4. Einbau abgehängter Decken einschl. Wärmedämmung
5. Komplettrenovierung (Tapezier-, Maler- und Lackierarbeiten)
Mehr anzeigen zum Thema Sonstige Angaben
Sonstige Angaben
Weitere Angbote finden Sie auf unser Homepage:
GuS-Immobilien.de
GuS-Immobilien.de
Mehr anzeigen zum Thema Sonstige Angaben
Energieausweis
- Nutzungsart
- Wohnen
- wesentlicher Energieträger
- Gas
- Energieeffizienzklasse
- D
- Energieausweis gültig bis
- 14.04.2028
- Energieausweis
- Verbrauchsausweis
- Endenergieverbrauch
- 105,9 kWh/(m²a)
- Baujahr lt. Energieausweis
- 1953